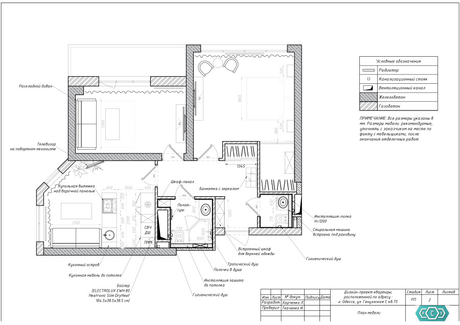
Furniture layout plan