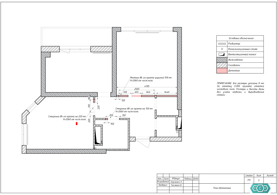
Plan for dismantling partitions