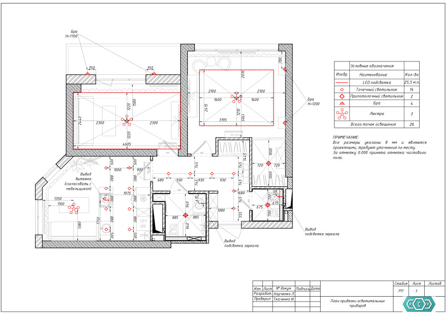
План освітлювальних приладів