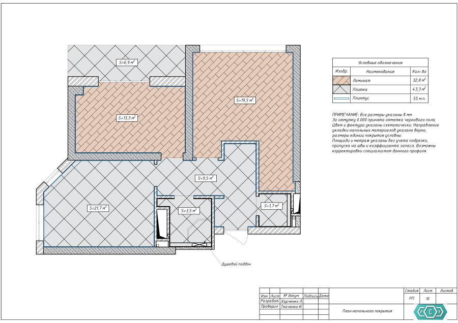
План підлогового покриття