Ten projekt pokazuje, jak nawet niewielkie mieszkanie może zmienić się nie do poznania, jeśli podejść do przestrzeni nie formalnie, lecz z uwzględnieniem realnego życia mieszkańców. Na początku mieliśmy standardowy układ z wyraźnie odczuwalnymi ograniczeniami: wąski korytarz, rozdzielone strefy, brak pełnoprawnego miejsca do pracy oraz ciągły niedobór systemów przechowywania. Przestrzeń była neutralna, ale nie miała charakteru i nie wspierała codziennych scenariuszy — wszystko istniało samo dla siebie, bez powiązań między strefami.

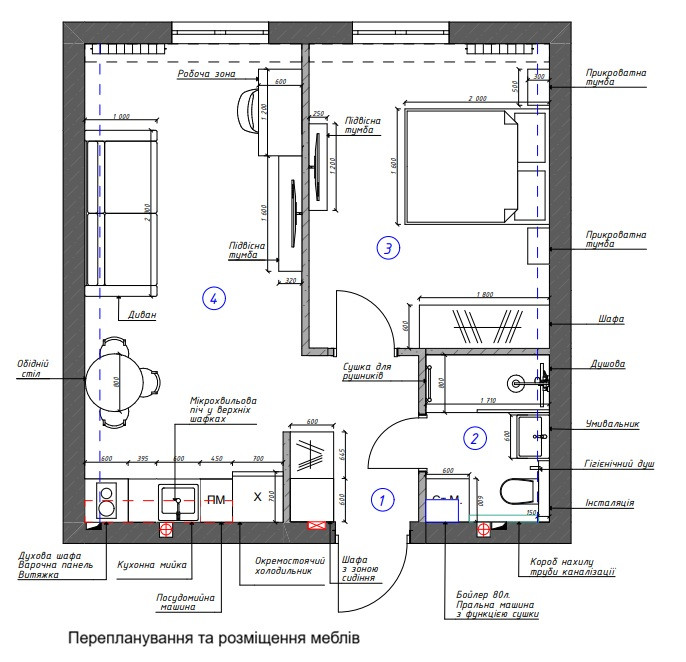
Głównym zadaniem było nie tylko „unowocześnienie” wnętrza, lecz stworzenie przestrzeni logicznej, wygodnej i działającej na korzyść mieszkańców. Dlatego prace zaczęto od przebudowy. Zmiany były delikatne, ale bardzo trafne. Korytarz przestał być jedynie strefą tranzytową i stał się pełnoprawną, funkcjonalną przestrzenią. Pojawiły się wbudowane szafy, miejsce do siedzenia oraz ukryte schowki, dzięki czemu mieszkanie „działa” już od pierwszych kroków w środku.
Równocześnie przemyślano układ stref. Przestrzeń zyskała jasną strukturę: powstała osobna strefa pracy, która nie wygląda jak rozwiązanie tymczasowe, lecz organicznie wpisuje się w wnętrze. Zaprojektowano ją tak, aby była komfortowa do codziennej pracy — z odpowiednimi proporcjami, oświetleniem i miejscami do przechowywania, a jednocześnie nie wyróżniała się z ogólnej stylistyki mieszkania. Strefa dzienna stała się bardziej otwarta i spokojna, bez poczucia przytłoczenia.
Szczególną uwagę poświęcono łazience. Przestrzeń zoptymalizowano tak, aby pomieścić wszystkie niezbędne funkcje, w tym pralkę z funkcją suszenia, dodatkowe nisze oraz wygodne scenariusze użytkowania. W efekcie nawet strefa techniczna wygląda przemyślanie i estetycznie, a nie jak kompromis.
Stylowo mieszkanie utrzymano w nowoczesnym minimalizmie z elementami soft modern. To wnętrze bez nadmiernego dekoru i krzykliwych akcentów, w którym główną rolę odgrywają proporcje, faktury i światło. Takie podejście pozwala przestrzeni pozostawać aktualną w czasie i nie męczyć w codziennym życiu.
Paleta kolorystyczna została świadomie wybrana jako stonowana i ciepła. Połączenie naturalnego drewna z głębokimi odcieniami grafitu i ciemnej szarości tworzy poczucie spokoju, stabilności i przytulności. Jasne, neutralne ściany równoważą ciemne elementy, wizualnie powiększają przestrzeń i wypełniają ją powietrzem. Taka paleta nie krzyczy, nie narzuca się i pozwala wnętrzu „żyć” razem z właścicielami.
Oświetlenie zbudowano według zasady wielopoziomowości. Światło ogólne odpowiada za komfort, światło robocze — za funkcjonalność, a akcentowe tworzy atmosferę wieczorem. Światło nie dominuje, lecz delikatnie podkreśla architekturę i materiały, pomagając przestrzeni zmieniać nastrój w ciągu dnia.
W efekcie to mieszkanie przeszło drogę od prostego, neutralnego lokum do przemyślanej przestrzeni życiowej. Nie ma tu przypadkowych rozwiązań — każdy metr ma swoją funkcję, każda strefa wpisuje się logicznie w całą kompozycję. To wnętrze nie tylko „do zdjęć”, ale do prawdziwego życia, pracy, odpoczynku i codziennego komfortu.
Było — zwykłe mieszkanie.
Jest — spójna, spokojna i funkcjonalna przestrzeń, która wspiera swojego właściciela każdego dnia.
